首页
关于我们
公司简介
公司荣誉
企业刊物
员工天地
新闻资讯
企业动态
行业新闻
媒体聚焦
专题活动
产品展示
水处理
实验室设计与装修
光谱质谱色谱
环境监测
食品药品安全
电化学仪器
生化/分子生物
耗材
解决方案
环境解决方案
食品安全解决方案
技术服务
销售网络
售后服务
技术文章
常见问题
下载中心
在线留言
投诉建议
公共关系
加入我们
招贤纳士
联系我们
产品中心
DREAT
水处理
实验室中央供纯水系统
实验室超纯水系统
实验室纯水、超纯水设备
实验室中央供纯水、超纯水系统
软水、中水、循环水系统
污水处理系统工程
水处理药剂及耗材
反渗透处理设备
水质检测
实验室设计与装修
实验室洁净工程
实验室通风系统
实验室废液、废气处理系统
实验室家具
通风柜
光谱质谱色谱
光谱
质谱
色谱
环境监测
样品前处理
分析检测
监测
食品药品安全
食品安全检测
农药残留检测
地沟油检测
电化学仪器
PH计
生化/分子生物
细胞分析仪
生物指标培养器
菌落计数器
耗材
配件
自动进样器
实验室设计与装修
首页
>>
产品展示
>>
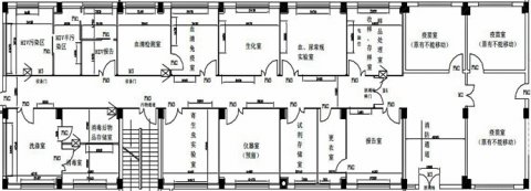
实验室设计与装修
实验室装修方案
四川德析仪器有限公司是一家着重于进口实验设备及耗材的公司,公司成立于2009年 , 注册资金8000万元 , 旗下拥有自主品牌是一家专业专注于实验室发展的综合性企业。公司力求建立起最全面的实验室仪器设备在线供应平台,为客户提供全面、优质、便捷的采购服务平台。
产品分类
Nova EU纯水超纯水一体机
Classic EU纯水超纯水一体机
Nova U超纯水机
Classic U超纯水机
Nova E纯水机
Classic E纯水机
产品介绍